No items found.
198000
€
198000
€cc/mois
Honoraires charge: vendeur
Toutes charges comprises
Appartement neuf avec loggia
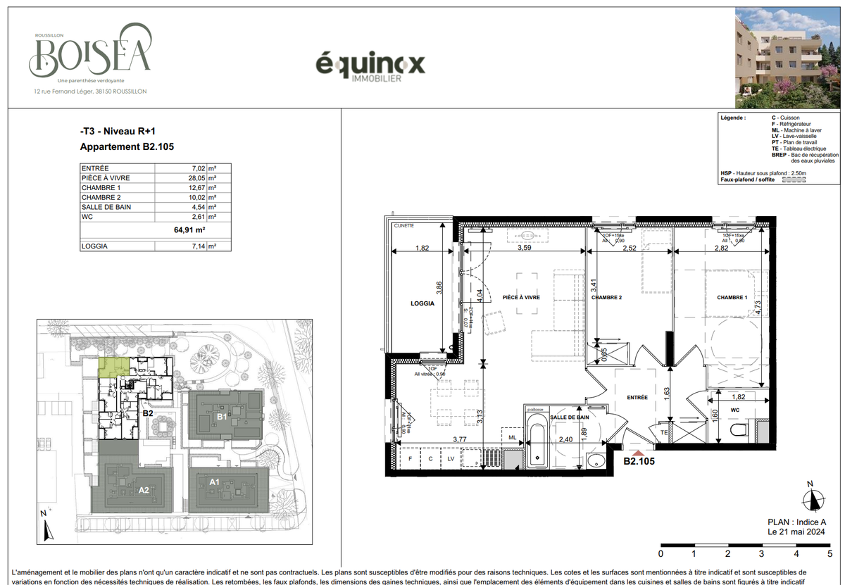
Situé au 1er étage d'une résidence neuve, venez découvrir ce bel appartement T3 de près de 65 m². Il se compose d'une entrée fonctionnelle desservant d'un côté un espace nuit avec deux chambres confortables (12,67 m² et 10,02 m²), une salle de bain et des WC séparés. De l'autre côté, vous accédez à une pièce de vie lumineuse de 28 m² avec cuisine ouverte, donnant sur une agréable loggia de plus de 7 m², parfaite pour profiter de l'extérieur. Boiséa est une résidence moderne et sécurisée de 25 logements, avec parkings en sous-sol, local vélos et caves. Des parkings visiteurs sont également disponibles à l’extérieur. Son environnement paysager arboré offre des espaces de promenade, un jardin partagé et des zones de détente. Les toitures végétalisées assurent un meilleur confort thermique en été. Face à la nouvelle clinique des Côtes du Rhône, la résidence bénéficie d’un accès direct à un pôle médical moderne, comprenant une maison médicale et un centre d’imagerie. Roussillon devient ainsi le 2ᵉ pôle de santé du Nord Isère. Atouts : Appartement fonctionnel et bien agencé Deux chambres confortables Belle loggia couverte de 7,14 m² Une place de stationnement sécurisée Résidence moderne et verdoyante Proche des commerces et des transports Cadre calme et sécurisé Pour plus d’informations ou organiser une visite, contactez-nous au 04 81 43 03 77 __ Les informations sur les risques auxquels ce bien est exposé sont disponibles sur le site Géorisques : www.georisques.gouv.fr __ Informations copropriété : Ce bien est soumis à la copropriété. Copropriété de 53 lots. Pas de procédure en cours.
Référence :
38150-19294_9
Surface
habitable
habitable
64.91
m²
Surperficie
du terrain
du terrain
7.14
m²
Pièces
Pièce
3
Chambres
Chambre
2
Détails
Loyer mensuel
198000
€
Montant des
charges
charges
€
Dépôt de garantie
€
Honoraire agence
TTC Charge locataire
TTC Charge locataire
€
(
dont
€ pour État des lieux)
Description
Type de bien
Appartement
Taxe foncière
€
Parking
0
WC
1
Piscine
Appartement
Terrasse
1
Salle de bain
1
Salle d'eau
0
Chauffage type
Chauffage mecanisme
Radiateur
Chauffage énergies
Bois en Granulés, Gaz de ville
NON SOUMIS AU DPE
DPE VIERGE
Performance énergétique
Consommation énergétique
A
B
C
D
E
F
G
215
kWh/m².an
215
kWh/m².an
kWh/m².an
kWh/m².an
215
kWh/m².an
215
kWh/m².an
215
kWh/m².an
Emission de gaz
A
B
C
D
E
F
G
kgeqCO2/m².an
kgeqCO2/m².an
5
kgeqCO2/m².an
5
kgeqCO2/m².an
5
kgeqCO2/m².an
5
kgeqCO2/m².an
5
kgeqCO2/m².an
Estimation des coûts annuels d'énergies du logement
entre
€
et
€
par an
Les coûts sont estimés en fonction des caractéristiques de votre logement
Prix moyen des énergies indexés sur l'année :
Oops! Something went wrong while submitting the form.

